About Us
Project drawing and development company
We work for architects, engineers, real estate agents, construction companies, and homeowners.
SPANISH +1 (727) 421-7385
Services

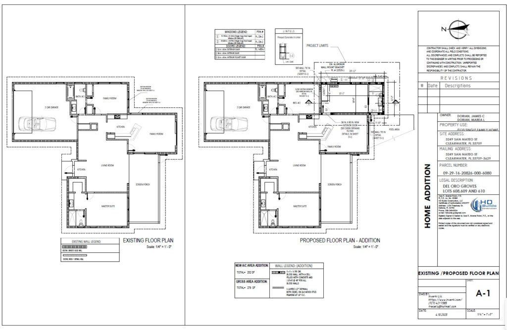
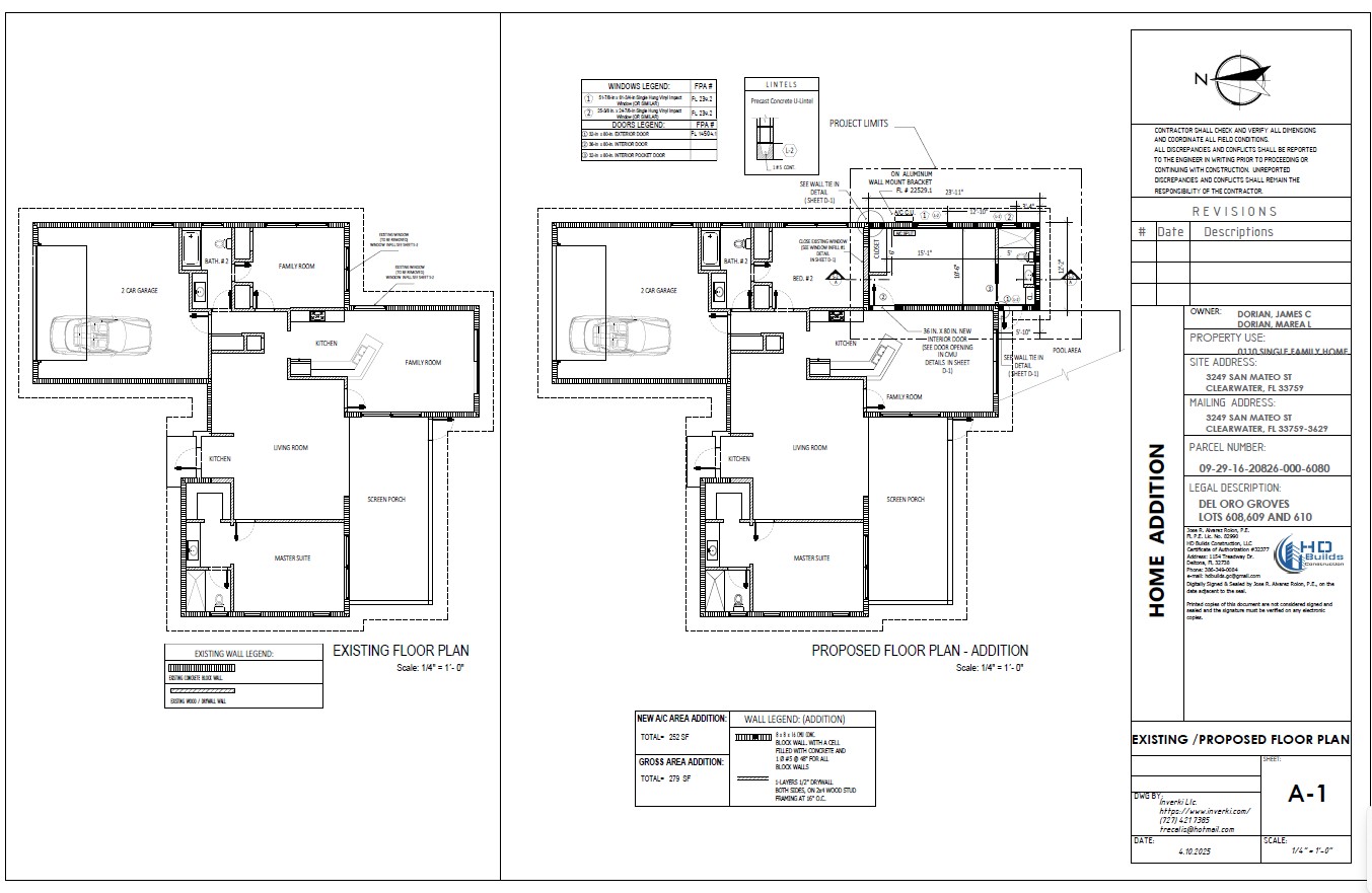
1.- Construction Plans
We can draw for you all types of plans for new construction, additions, home remodels, repairs, landscaping, and special details of all kinds. From single-family homes and townhouses to commercial projects, we handle the technical development of your ideas.
Note: All drafting and project development services are preliminary. In accordance with local and international professional regulations (including Florida State Statutes Chapter 481 where applicable), these plans are for conceptual or drafting purposes only. All documents must be reviewed, signed, and sealed by a licensed Architect or Engineer of Record in the appropriate jurisdiction prior to permit submission or construction.

2.- Photorealistic Rendering, Videos, and 3D Models
We provide high-end 3D imagery to help you visualize or market your project before it is built. From stunning photorealistic renders to immersive virtual tour videos, we bring your vision to life.
Note: Visualizations are for artistic and conceptual purposes only.

3.- As-Built Plans and Building Code Violations
We provide detailed «As-Built» documentation for existing structures to help resolve city requirements, fire department mandates, fines, or real estate transactions. From a 1920’s church to a modern facility, we document current conditions to facilitate the regularization process.
Note: Our services are limited to measuring and drafting. All documents for code violations or «after-the-fact» permits must be validated and sealed by a licensed professional in the appropriate jurisdiction.
Our Team
Antonio Arismendi
Founder & CEOJOSE MANUEL GONCALVES
DESIGNER COLLABORATEGet in Touch
Let’s have a chat





























