Saltar al contenido
MenĂº
Home
About Us
Services
Projects
Our Team
Contact
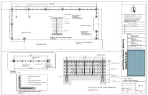
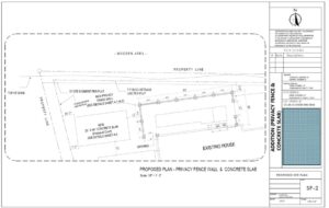
Gallery ADDITION (PRIVACY FENCE & CONCRETE SLAB)